随着新图书馆的奠基开工,东方学院新一轮大规模的建设改造拉开大幕。12月15日,南校区总规划建设方案通过泰安市规划局批准,一个功能更加完备、设施更加完善、布局更加科学的秀美校园正向我们走来。
几番努力,规划方案终获批
建设高水平应用型大学,学校现有基础设施远远不能满足发展需求。建校初期,我校确立了两步走的战略规划,但是现有硬件设施制约着学校进一步扩大规模、提高办学质量,校区扩建成为当务之急。2017年7月,在新一届董事会和有关部门积极斡旋下,我校新征近200亩建设用地获得泰安高新区管委会批复,破解了学校发展瓶颈,南校区规划建设立即启动。学校项目建设办公室积极与设计单位山东建筑大学设计院磋商确定总规划初稿,对建设区域、控规指标、人均(校舍、绿地、体育设施)指标等做出6次修改,本着优中选优、精益求精、资源利用最大化的原则,校领导与有关部门经过反复认真磋商,9月份学校总规方案定稿;10月份,南校区建设可研报告通过审批;高新区规划局对总规方案提出十余次修改,最终于11月23日通过泰安规划局预审;11月24日,通过泰安市环保局环境影响评价公示;12月15日,总规方案通过泰安市规划局局长办公会研究审批。在方案确定过程中,校领导多次提出优化建议。董事长陈磊按照容积率最大化的原则,提出增加建筑面积1.5万平方米。董事长陈磊、院长宫淑瑰与高新区领导多次协调争取,积极推动项目进度,促成了涵洞和天桥规划方案的确定。
总规划建设方案通过批准,意味着我校下一步的建设用地规划许可证即将获批,后续单体工程可据此依次展开,东方学院新一轮建设高潮正在到来。
一张图纸,南北校区统一规划
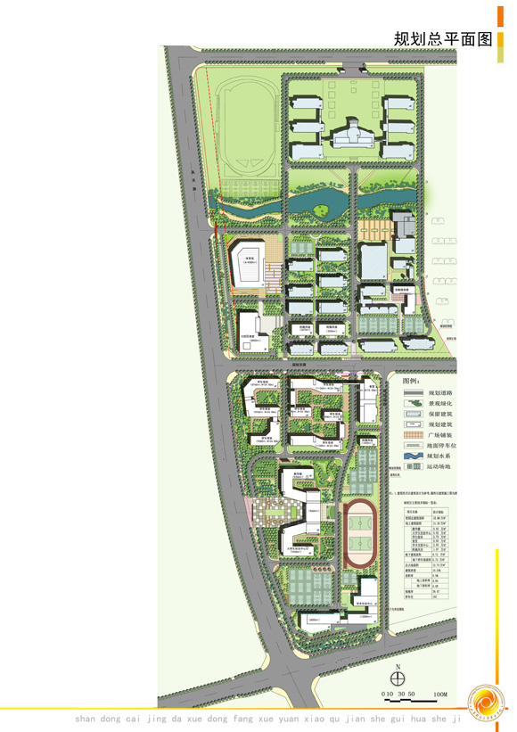
在项目建设办公室,一张绘满线条和数字的规划蓝图,向我们展示了学校宏伟壮美的发展前景。南北校区紧密结合原始地形地貌,以“共享、绿色、生态”为理念,因势造景,集约建筑布局,小集中大分散,打造疏密有致、层级丰富的立体空间,形成“一带、双轴、三核、八区”的规划结构:
一带:滨水景观带。
两轴:南北主轴:北起正阳大街校门主入口广场,向南经过北校区主广场,图书馆,南校区生活区,教学区、运动区至南校门;东西主轴:以南校区主入口为起点形成东向西主轴线。
三核:北校区主广场核心,北校区中心绿地核心,南校区主广场核心。
八区:通过将各功能组团式布局,形成疏落有致的校园空间,更便于各功能间的高效使用。
为使整个校区浑然一体,南北校区以涵洞和过街天桥两种方式连接。对已有建筑进行立面改造,按照南校区统一色系进行装修粉刷。按一张图纸完善景观体系,营造人文与自然景观并存的生态校园。
据了解,北校区统一规划后,学校将有5个主出入口。北区原西门封闭,在凤凰河南岸修建新西大门,一条12米宽的干道连通新图书馆和新西门。原北校区主大门不变,南校区在西侧设主入口,另外南北校区之间各开有一出入口。
南北校园建设改造完成后,南北有机融合贯通,可达到国家有关部门《普通高校建设面积指标》要求,满足12000名学生就读的需求。校园将按照传统的建筑布局,营造出具有空间认同感和归属感的立体场所,形成风格一致、疏密协调的一体化校园环境。
新的学校,更大更美更怡人
东方学院是一个有愿景有未来的学校,新校区的建设,为她的梦想实现提供了宽阔的空间。一系列工程项目的开工建设,一个更大更美更怡人的校园正从图纸变为现实。
更大:南校区的扩建,扩大了教育教学和学生活动空间,校园总建筑面积增加12.02万㎡,为“十三五”期间创建万人大学的目标打下了基础。
南校区从北到南依次布局有生活宿舍区、教学创业区和体育活动区、对外交流区,建设学生公寓、校医院及附属用房和南院食堂,建设大学生创业中心,体育场、篮球场和排球场,扩大了学生的体育活动区域,同时,在北区原大学生拓展中心建设一座容纳2000人的体育馆,在西门练车场建立新的食堂;澡堂位置建设一座5000平方米的后勤服务楼,拆除北区南部原有临时性平房,使整个南北校园有2个食堂、两个体育场、一座大型图书馆、一座体育馆、7座教学楼、一座科技实验楼,莘莘学子在宽敞通透的环境中,畅享知识之美和快乐的成长。
更美:校园规划本着绿色、生态、低碳、环保、集约、可持续发展的建设理念,一条“公共生态绿脉”贯穿东西,结合中心景观与绿化隔离带架构其整个校园的生态网络,形成对内通过水体、广场、绿化向两侧渗透,对外形成与外部环境的缓冲空间与交流空间,从总体上构成“对内包容,对外开放”可持续发展的景观生态格局,干道和绿化甬道曲直相济,路景结合,步移景异,使师生徜徉其中,尽情吸取知识的营养,激发创造的情愫。
更舒适:更加注重人性化尺度以及各种交往空间的营造,建设人文校园、生态校园、智慧校园。生活区集中在南北校区结合部,教学区、体育活动区基本呈南北对称分布,做到动静分离,方便学习和生活;交通系统采用“人车分流、步行优先、内外有序”的宗旨,主要道路两侧重新绿化,并设人行道,增加校园道路空间的活力与安全性,并在建筑和道路设计上考虑无障碍通行的需要。学生公寓提升入住体验,将设6人间和部分4人间宿舍,上床下桌,宿舍里安装空调、设带淋浴的卫生间,打造舒适怡人的生活空间。
明年底,东方学院颜值更高
12月19日,在新图书馆奠基的喜庆鞭炮声中,南北校区建设改造正式启动。北区:新西门和沿河主路,将在明年元旦后开工;图书馆开工后,6号教学实验楼将在明年三月底开工,五一前后,体育馆和新食堂建设将启动。
南区:2018年5月,将完成清表和围墙建设。4栋学生公寓、部分基础设施将开工建设。
2018年年底,你有可能看到这样的景象:新食堂完工;图书馆完工;实验楼完工;南区4栋学生公寓投入使用,体育场基本竣工,部分建筑已换上新装。作为东方学院的学子或者老师,你是幸福的:校舍宽大敞亮,不再有抢座之忧;生活便利,学习、锻炼、娱乐应对自如;校园绿意缠绕,甬道曲径通幽,畅享诗情画意......
项目建设办公室副主任王培杰告诉记者,新校区的建设,受到全体师生的广泛关注,能参与到这次“百年大计”的大规模工程建设,在学校建设发展中体现自身价值,作为项目组成员,他们感到光荣和幸运。项目组将以为学校发展和全体师生负责的政治责任感,不负重托,建一个工程,树一座丰碑,严保安全质量,不遗余力推进工程进度。
2017年,对于东方学院真是喜事连连。新一轮办学协议的签署,南校区建设规划获批,人事分配制度改革方案的即将出台……学校的二次创业、二次发展、二次提升迈上了快车道,内涵建设与特色发展并举,一所更大更美,更具精神气质的高水平应用型大学正向我们走来。
撰稿:王学敏
